Caroline Special Edition

Essential Series
*Some exterior features shown and listed are optional. All features and options shown may not be available on all models. Please check with your Home Consultant for availability and pricing.
*Every home is built to meet or exceed all state and local residential building code requirements! Includes 10 YEAR STRUCTURAL HOME WARRANTY!

Floor Plan Details

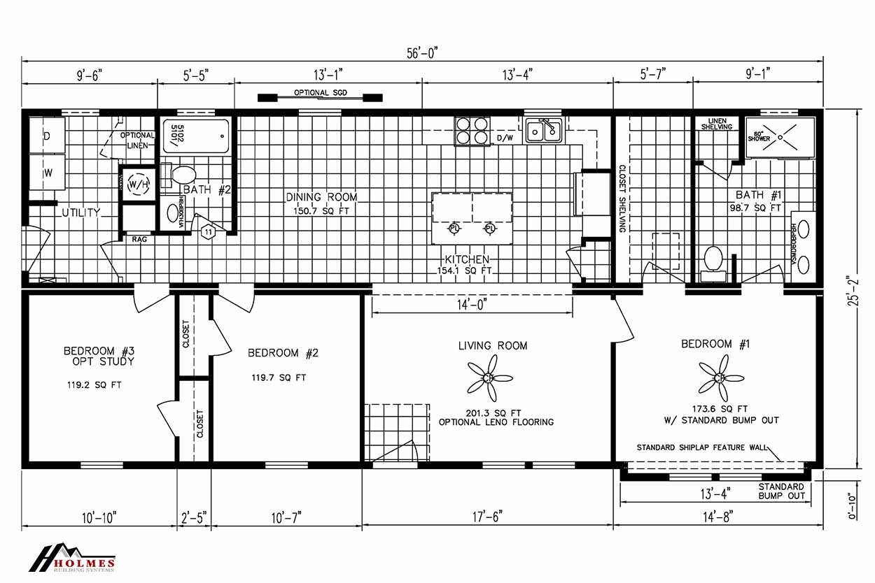
1420 Sq.Ft.
3 Beds
2 Baths
Download Plan
Request More Information

Name(Required)
What city and state do you plan to build?(Required)
I own land or have land for my new home:(Required)
Have you been pre-approved for a home loan?(Required)

Gallery

Click images to enlarge.

VIDEO TOUR (If Available)

Image Yourself Living in this Floor Plan

Stepping into your new Caroline Special Edition modular home, you’re welcomed by a thoughtfully designed floor plan made to fit your family’s lifestyle. This spacious 1,420-square-foot home balances comfort and practicality, featuring three bedrooms and two bathrooms for modern living.

Imagine entering the welcoming foyer, which effortlessly transitions into the heart of the home. The open-concept design connects the living room, kitchen, and dining area seamlessly, creating an ideal space for family gatherings and entertaining guests. Picture the large, sunlit living area with ample room for comfortable seating, where countless memories will be made watching movies or enjoying a game night.

The kitchen is the focal point. It’s built with both functionality and style, featuring modern appliances, ample counter space, and plenty of storage, including a pantry. Imagine preparing your favorite meals on a large kitchen island while keeping an eye on children doing homework at the dining table or catching up with loved ones in the living room. It’s a space that truly allows for multitasking without missing out on the conversation.

  • Open-concept living area
  • Spacious kitchen with a large island and modern appliances
  • Ample storage and counter space

Now imagine retreating to the master bedroom, a sanctuary designed for relaxation and privacy. This room is generously sized and comes with an en-suite bathroom, providing a private, quiet space after a long day. It’s strategically placed away from the other bedrooms, offering a perfect mix of seclusion and accessibility. Visualize unwinding in your en-suite bathroom, featuring a 60-inch shower and double vanity sinks.

The remaining two bedrooms offer flexibility; you might see them serving as children’s rooms, guest quarters, or even a home office or gym. These bedrooms are thoughtfully designed with large windows that welcome natural light, creating bright and inviting spaces. The second bathroom is conveniently located between these rooms, making it accessible for family or guests.

  • Private master suite with an en-suite bathroom
  • Two additional bedrooms for versatility
  • Conveniently located second full bathroom

The side entry to the laundry room provides easy access for a future garage.

This modular home’s layout encourages a lifestyle of ease and enjoyment. Its design promotes social interaction and personal retreats, balancing communal living with personal spaces. With thoughtful touches and a focus on modern standards, this floor plan offers a beautiful, inviting setting your family will cherish.

Are you ready to start making memories in your new home? Take the next step and request more information about this floor plan. Discover how this home can accommodate your family’s needs with style and comfort. Reach out today to learn more about making this modular house your home.

Scroll to Top